Theo mẫu phiếu đăng ký dự thi và xét tuyển được Bộ Giáo dục và Đào tạo công bố, hồ sơ đăng ký dự thi gồm 2 phiếu có nội dung giống nhau (nơi nhận hồ sơ giữ phiếu số 1 và thí sinh giữ phiếu số 2 để đối chiếu trong trường hợp cần thiết).
Nội dung phiếu đăng ký dự thi gồm 4 phần chính: phần A thông tin cá nhân, phần B thông tin đăng ký thi, phần C thông tin để xét công nhận tốt nghiệp trung học phổ thông và phần D thông tin dùng để xét tuyển vào đại học, cao đẳng.
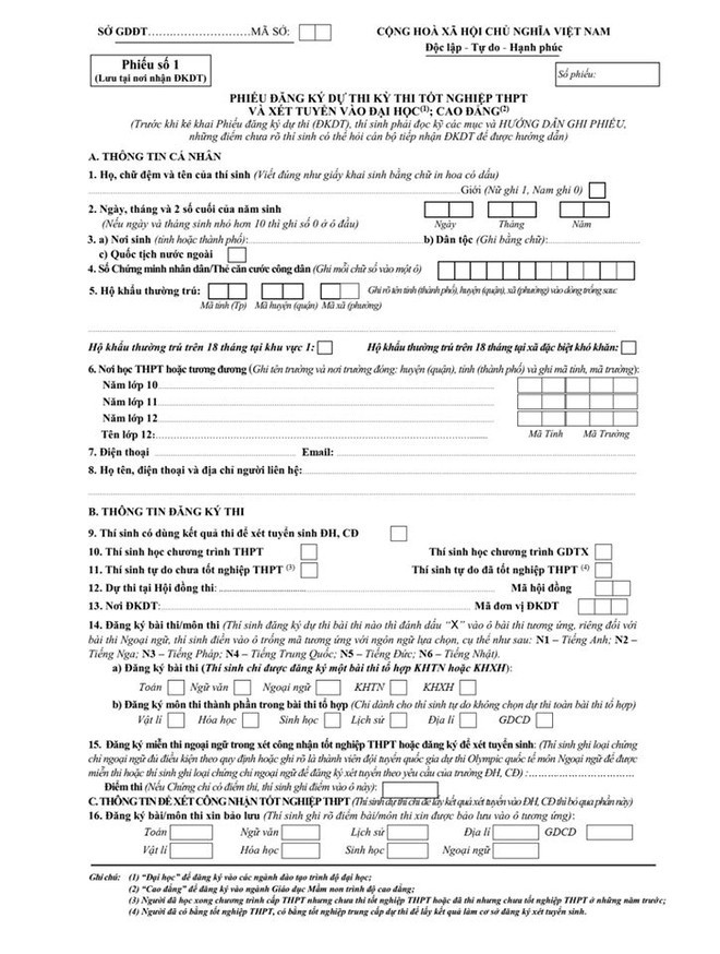
Dưới đây là mẫu phiếu đăng ký dự thi và xét tuyển cụ thể năm nay:
![]() |
![]() |
Một số lỗi điền phiếu mà những năm trước rất nhiều thí sinh mắc phải mà các em cần lưu ý như:
- Phần thông tin thí sinh, tên phải viết bằng chữ in hoa có dấu, không viết bằng chữ thường.
- Nếu số chứng minh nhân dân là loại cũ chỉ có 9 chữ số, thí sinh cần điền vào 9 ô cuối cùng ở mục 4 trên phiếu, không điền vào 9 ô đầu tiên.
- Thông tin trên các phiếu số 1, số 2 và cả trên bì đựng phiếu phải trùng khớp. Nếu có sai sót, thí sinh đem theo phiếu dự thi vào buổi tập trung phổ biến quy chế thi để đề nghị sửa chữa sai sót.
Những sai sót dù là rất nhỏ nhưng cũng gây phiền toái cho thí sinh trong quá trình đăng ký dự thi. Do đó, các em cần đọc kỹ phần hướng dẫn trước khi điền phiếu.
Thí sinh dự thi tốt nghiệp trung học phổ thông năm nay cần lưu ý chỉ được đăng ký một trong hai tổ hợp Khoa học tự nhiên (Vật lý, Hóa học, Sinh học) hoặc Khoa học xã hội (Lịch sử, Địa lý, Giáo dục công dân) thay vì được đăng ký cả hai bài tổ hợp như ở kỳ thi trung học phổ thông uốc gia những năm trước.
Năm nay, thí sinh vẫn được đăng ký số nguyện vọng xét tuyển không giới hạn.


